
改修工事中の様子。

完成しました。
手前がサンルーム、奥が家族用の玄関…合わせて3坪位の増築です。

家族用玄関はリビングダイニングとつながっています。
既存の掃き出しサッシを外して接続させました。透過性のある木製建具で開閉できます。

この土間、ワンちゃんのゲージが置かれて冬はホカホカ、夏はヒンヤリの居場所になります。

サンダルやローシューズは、ちゃんと框下に収納できるようにしてあるのです。

こちらはサンルーム。全開口の折戸です。奥に見えるのは既存雨戸の戸袋…うまく納まりました。
壁は杉板。外壁側のみ、エボニー色で着色。



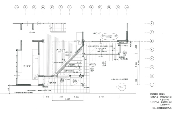
こんな感じで、図面も7枚描いています。保管図面や実測を元に、既存部との取り合いを検討しながらの作図です。
特に、既存ベランダの軒裏と、サンルーム屋根の高さ関係がシビアでした。
現場に伝えて、微調整しながらうまく納めてもらいました。さすがの現場力。
工務店のいいところです。特に改修工事の場合には、このへんのやりとりがとても大切。
設計していて、いつも思います。

Sさんちのレモンの木…今年が10年目で、はじめて実が成ったそうです。
鮮やかな黄色の実をみていると、なんだか嬉しくなります。時間の賜物です。
埼玉 木の家 注文住宅 工務店 榊住建